



Plot for sale
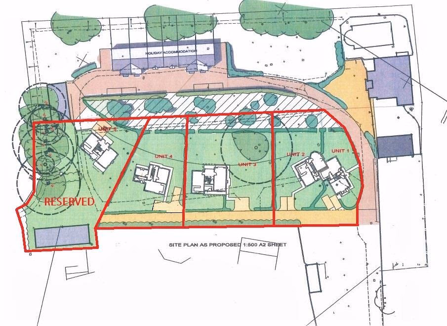
Nestled within the picturesque hamlet of Norton Green is this good sized, building plot with adjacent services and planning permission to build a four bedroom detached house.
Plot for sale
Description
Nestled within the picturesque hamlet of Norton Green is this good sized, building plot with adjacent services and planning permission to build a four bedroom detached house.
Contact Agent
Smart Picks — Professionals Relevant to This Land
Based on this property's key features, here are the specialists you may want to consult as part of your due diligence: land agents, rural solicitors and planning consultants.

Land Agents
Essential for navigating the land market, finding buyers, and securing the best price.

Rural Solicitors
Significant investment (£220K+) requires legal expertise for conveyancing, title checks, and transaction security.

Planning Consultants
Planning-sensitive site needs expert guidance for applications and development strategy.
Location
Norton Green